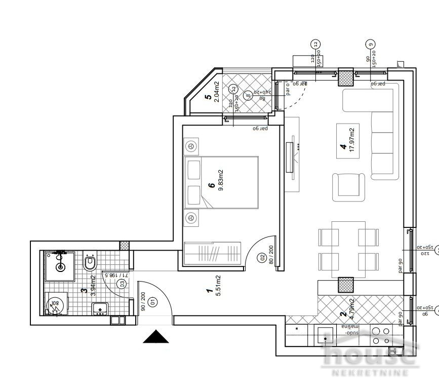
ID: 1063848 - Agencijska oznaka 1063848 - Prodaje se UKNJIŽEN dvosoban stan u izgradnji sa PDV-om, na Telepu, u blizini Limana. Dnevni boravak, soba, odvojena kuhinja, hodnik, kupatilo, terasa. Mogućnost kupovine garažnog mesta po ceni od 20.000 e. Rok useljenj